Once
all of the scenery side of things have been seen to, you can now turn your
attention to other aspects of railroad Modelling such as Tree making, etc. but,
lets see about scratchbuilding a few
structures for your layout. Nothing fancy at first, just a small building with
step by step instructions on how to build it. Then afterwards if you want to, you can start on
what ever takes your fancy as you will have the knowledge on scratchbuilding.
SCRATCH
BUILT STRUCTURES
As I model the American logging scene, I find I have to
make most of my structures to suit the layout. There are of course many plastic
kits available on the market that simulates the wood effect, but nothing can
replace real wood for a wooden structure. To this end, I use in abundance
(STRIPWOOD) this stripwood is 1/8 of an inch wide by 1/64 of an inch thick, by 2
foot , and
comes in two different colours. One is a dark rich red colour, and the other a
light tan colour, I like the light tan colour for its natural look about it.
TOOLS
FOR THE JOB
1 -- Craft knife (I Use the yellow handled
SWAN MORTON craft knife)
2 -- plenty of blades (No’s 1 & 2) the number 2 blade
is especially useful for cutting the stripwood by just rolling the blade over
the wood.
3 -- 4H pencil and rubber
4 -- Tee square (ruler)
5 -- Tube of EVO STICK (Contact Adhesive)
6 -- Plenty of stripwood and some pieces of 1/16 of an inch
square balsa wood.
7 -- Some thin but stiff card. I very often use weetabix
boxes)
Okay, lets make a small structure.
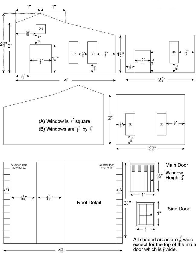
As the drawing for the structure is full size for HO, you can
either photocopy the drawing and paste it onto card and just cut around the
marks very carefully, or mark it all out yourself.
Myself,
I used the drawing as a template, gluing it to a piece of card. Once the glue
had dried, I just cut around the marks.
If you are Modelling in N-gauge, just get the drawing reduced by 50% This is easy to do, just right click on this drawing and save it as (yourname.jpg) and resize it by 50% most paint programs allow you to do this . Then you can print it out and use it.

Once
you have cut out the card, and the
windows and doorways have been cut out, a start can be made with the stripwood
on all four pieces. Photo number
one shows
all four pieces cut and a start with the stripwood made.
Photo number 1

Cut (just a
little oversize) some stripwood, spread the EVO glue onto the card and spread it
all over, now, one by one, place the stripwood onto the card, side by side and
leave a small gap. You may have to apply more glue onto the card as you go along
because the card tends to soak up the glue quite quickly, and dries out.
Once you have got to the end, put it to one side to dry for
an hour at least and do the next piece of card. Carry on until all four sides
are finished.
Once they have all dried, lay a ruler across the edges and cut off the access to leave a nice clean edge on all four sides of each piece. This is the time to use the number 2 blades and cut out the stripwood from the windows and doorways. Just roll the blade over the wood, and it will come off clean. Photo number two shows the four pieces complete with stripwood and a start made on framing the windows, note the doorways have already been framed.
Photo number 2

Cut a length of stripwood about one foot long and using the
number two blades, strip it down its length. (Just roll the blade backwards and
forwards moving up the length) Now very carefully frame the windows and doorway.
To finish off the windows inside, use black thread gluing first a piece
vertically and then a piece horizontally. After all thread has been applied,
place behind the windows some clear plastic to represent the glass. (I very
often use kitchen towel)
For the doorways, cut out a small piece of card 1/16 of an
inch larger than the doorways, and glue the stripwood to the card. Do not forget
the 1/8 piece of stripwood placed at the top of the large door, do this first,
and also cut out the small window on the large door.
PUTTING
IT TOGETHER
Now glue all four sides together, making sure that the
structure is square. Cut out four tiny triangles of card and glue these into
each corner to keep it square, and put it to one side to dry. Photo number three
shows the completed structure without its roof.
Photo number 3

When your structure is dry, now is the time to think about
what colours you want to paint it. I painted mine a light grey with the windows
and doorways brown. You paint yours what ever colours take your fancy.
THE
ROOF
Now, onto the roof. Cut out from a piece of thinner card the
shape and size from the drawing. Score with the back of the knife the lines
where the card bends.( you will have to turn the card over for one score mark)
and glue it to the structure. Which I hope is now dry)
All that remains to be done at this stage is to cut out from the 1/16 of
an inch square, small pieces to fit under the roof. These are spaced every 1/4
of an inch. When dry, paint them a dark brown. Now a start on the roof shingles
can begin.
ROOF
SHINGLES
There are a number of ways to shingle a roof, one is using
Campbell’s paper shingle which I have used in the past, another is cutting the
stripwood into tiny pieces and applying them one by one, (This I like the best)
and last but not least paper shingles made by cutting the paper with a pair of
pinking shears. Shingles cut with the pinking shears are in fact quite nice to
look at inasmuch as they have a diamond shape finish and look fine, so we’ll
use this method.
Ordinary A4 paper will do for the shingles, just mark out
across the paper every 1/2 an inch,
and rule it across. Cut along the lines. You are then left with diamond shaped
lengths on both sides of the paper, now cut these in half, giving you two
pieces with a straight edge and a diamond edge. Do the same with all pieces cut.
You are now ready to shingle the roof. See Photo number four.

Starting at the bottom of the roof, (any side) start to glue
the small lengths of paper shingle onto the roof. When starting the second row,
cut the left hand diamond in half, and
glue this to the edge of the structure first. What this does in effect, is to
stagger the diamond shape. Don’t forget, every other row, cut the diamond in
half, before starting the run.
When the shingles on the roof have dried, you will need to
apply some 1/16 of an inch square
balsa underneath the door and both sides
of the structure. Then paint the roof with a light grey paint.
You should now have a very smart looking structure, almost
ready for the layout, all we need to do now, is weather it. By the way, don’t
forget to add a chimney or two, to give it a bit more character.
WEATHERING
I don’t want to delve into the art of weathering as for
locomotives or freight cars, but a similar weathering job is needed for the
structure you have just built.
I tend to weather my scratchbuilt structures using a variety
of coloured chalks, - Light Grey - Black - White - Rust and Yellow, plus a
bottle of Indian ink.
If you want to weather your structure some other way,
that’s fine. If you want to use chalk and ink, here’s how I did mine.
(I made a small box approximately 6 inch's square, out of
card , and placed some partitions into it, to hold the chalk scraping’s.)
Scrape some of the grey chalk into a container ready for
use. With a pen and Indian ink, scribe (not too much ink mind) down the
gap in the stripwood. This will highlight the wood effect. When this part of the
procedure is dry, grab a small but stiff brush, Mine is 1/2 an inch wide) and
dip it into the box with the desired chalk colour. (I used grey) Now, brush it
onto the roof of the structure brushing downwards. If you get too much chalk on
the structure, just wipe or blow it away.
For the main structure I used a small amount of rust and
gently brushed the sides, the ink between the stripwood brings out the details.
When you are happy with what you have achieved, you will need to spray the
structure a Matt varnish to protect the
work done. Also the chalks won’t come off on your fingers.
Photo number five shows the finished structure with a walkway
added out of card and stripwood.

Well that’s it folks, how to make a true wood looking structure. I can tell you that the end results justify all the work involved. I can honestly say that I enjoy the challenge of scratchbuilding, whether it be from building a structure from a photograph or one I have made up and drawn up on the computer, whatever the case, It’s great fun, here's a few photo's of some of my scratchbuilt structures, all made exactly like the structure above. The only structure not done that way was the sawmill below, that was made using 1/4" timber for the main frame.

These shingles were cut from plasticard

These were Campbell shingles

roof was plasticard corrugated sheet.
